NOT LISTED FOR SALE

Estimated Value: $150,000 - $190,000

0.15 Acres
$1,133,333 Price per Acre
6,590 Sq Ft Lot

Sale Details

Date Sold: August 25, 2023

Last sale price $106,666

Est. 59% increase in value since last sale

Current estimated payment $1,003 / mo

212 Days on Market

Highlights

  • Golf Course Community
  • No HOA
  • Shops
  • Property is near public transit
  • Park
  • 3-minute walk to Grant Square

About This Lot

As of August 2023

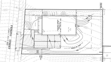
Attention Builders !!! and developers Ready for permit application ZBA approval granted on 3/13 from the zoning and planning board for a two Family building, the Lot has water sewer and gas on street. walking distance to Umass memorial hospital and access to all major highways and downtown Worcester All the design plans, site plan survey, engineering and site approval will be provided at no additional cost, all you have to do is decide on your final changes to interior building plans and apply for a building permit. Lots of new townhomes in the area with fantastic comps! (see plan) this lot can also be sold as a package of three lots 47 Westminster and 17 Perkins Street See MLS #

Last Agent to Sell the Property

Charbel Najem

CR Premier Properties Listed on: 09/26/2022

Last Buyer's Agent

Charbel Najem

CR Premier Properties Listed on: 09/26/2022

Property Details

Property Type

  • Land

Est. Annual Taxes

  • $839

Lot Details

  • 6,590 Sq Ft Lot
  • Level Lot
  • Property is zoned RG5

Additional Features

  • Property is near public transit
  • Electricity To Lot Line

Listing and Financial Details

  • Assessor Parcel Number 1770636

Community Details

Recreation

  • Golf Course Community
  • Park

Additional Features

  • No Home Owners Association
  • Shops

Property Details

Property Type

Land

Est. Annual Taxes

$839

Lot Details

6,590 Sq Ft Lot

Listing Details

  • Property Type: Land
  • Property Sub Type: Residential
  • SUB AGENCY OFFERED: No
  • Compensation Based On: Net Sale Price
  • ResoPropertyType: Land
  • Special Features: None

Interior Features

  • MAIN LO: AN0475
  • MAIN SO: AN0475

Exterior Features

  • Home Warranty YN: No
  • Road Frontage Type: Public
  • Waterfront YN: No
  • Waterview Flag: No

Utilities

  • Sewer: Public Sewer
  • Gas: At Street
  • Electric: On-Site
  • Electricity On Property: Yes
  • Water Source: Public

Condo/Co-op/Association

  • Association YN: No
  • Community Features: Public Transportation, Shopping, Park, Golf
  • Senior Community YN: No

Lot Info

  • Parcel Number: 1770636
  • Zoning: RG5
  • Farm Land Area Units: Square Feet
  • Lot Features: Level, Rolling Slope, Curbs & Gutters, Storm Drains
  • Lot Size Acres: 0.15
  • Lot Size Sq Ft: 6590
  • Lot Size Units: Acres
  • ResoLotSizeUnits: Acres

Tax Info

  • Tax Year: 2022
  • Tax Annual Amount: 839

Ownership History

Date Name Owned For Owner Type

Purchase Details

Closed on
Jun 22, 2023
Sold by
Capstone Rt and Najem
Bought by
Ibrahim Rt and Hameed
Current Estimated Value
$170,000

Purchase Details

Closed on
Apr 27, 2010
Sold by
Barbour Peter
Bought by
Worc E Side Community

Purchase Details

Closed on
Apr 7, 2010
Sold by
Barbour Ft and Barbour
Bought by
Barbour Peter

Purchase Details

Closed on
Feb 10, 1988
Sold by
Sandstrom Robert I
Bought by
Barbour Tr P
Source: Public Records

Range of Values:

--
Value Increase
--
Percent Increase
--
Adjusted for Inflation
Collateral Analytics

Collateral Analytics Collateral Analytics AVMs (Automated Valuation Model) employ a number of statistical approaches combined with neighborhood-specific comparable selection guarantees the most up-to-date and precise valuations.

Not Available

Collateral Analytics does not have data for the current month. Please view the chart for historical values.

ICE

ICE Mortgage Technology ICE Mortgage Technology’s AVM (Automated Valuation Model) is a state-of-the-art online residential property valuation tool that provides a quick and accurate estimate of the value of almost any home in the U.S.

Not Available

ICE Mortgage Technology does not have data for the current month. Please view the chart for historical values.

First American

First American First American Data & Analytics’ next-generation AVM combines unrivaled data assets with a blended ensemble of valuation models to produce highly accurate, reliable valuations you can trust.

Not Available

First American does not have data for the current month. Please view the chart for historical values.

Quantarium

Quantarium Quantarium’s valuation service, repeatedly proven the industry’s most accurate and comprehensive, is supercharged with a self-learning and auto-tuning AI engine that continually becomes smarter and more accurate as it processes daily inputs from the industry’s leading RE data lake.

Not Available

Quantarium does not have data for the current month. Please view the chart for historical values.

Average Value
Not Available
List Price
Sold Price
Create a Home Valuation Report for This Property
The Home Valuation Report is an in-depth analysis detailing your home's value as well as a comparison with similar homes in the area

Home Values in the Area

Source: Public Records

Average Home Value in this Area





Source: Public Records

Purchase History

Date Buyer Sale Price Title Company
Ibrahim Rt $320,000 Misc Company
Ibrahim Rt $320,000 Misc Company
Worc E Side Community $35,000 --
Worc E Side Community $35,000 --
Barbour Peter -- --
Barbour Peter -- --
Barbour Tr P $17,500 --
Source: Public Records

Property History

Date Event Price List to Sale Price per Sq Ft
08/25/2023 08/25/23 Sold $106,666 -21.0% --
04/27/2023 04/27/23 Pending -- -- --
03/19/2023 03/19/23 Price Changed $135,000 -6.9% --
01/30/2023 01/30/23 For Sale $145,000 +35.9% --
01/26/2023 01/26/23 Off Market $106,666 -- --
09/26/2022 09/26/22 For Sale $145,000 -- --
Source: MLS Property Information Network (MLS PIN)

Tax History

Year Tax Paid Tax Assessment Tax Assessment Total Assessment is a certain percentage of the fair market value that is determined by local assessors to be the total taxable value of land and additions on the property. Land Improvement
2025 $1,285 $97,400 $97,400 $0
2024 $1,297 $94,300 $94,300 $0
2023 $1,176 $82,000 $82,000 $0
2022 $998 $65,600 $65,600 $0
2021 $855 $52,500 $52,500 $0
2020 $886 $52,100 $52,100 $0
2019 $819 $45,500 $45,500 $0
2018 $860 $45,500 $45,500 $0
2017 $875 $45,500 $45,500 $0
2016 $674 $32,700 $32,700 $0
2015 $656 $32,700 $32,700 $0
2014 $639 $32,700 $32,700 $0
Source: Public Records

Agents Affiliated with this Home

  • Section Image
See All Agents

Map

Source: MLS Property Information Network (MLS PIN)

MLS Number: 73040932

MLS Property Information Network (MLS PIN)

APN: WORC-000009-000002-000012

Your Personal Tour Guide

Ask me questions while you tour the home.