2505 Leonia Ln Zephyrhills, FL 33541
Two Rivers NeighborhoodAbout This Home
This two-story home in Two Rivers community with 5 bedrooms and 2.5 bathrooms is available for rent. In the much sought out location on SR-56 and near Morris bridge road intersection. excellent location and connectivity to I-75, malls and hospitals.
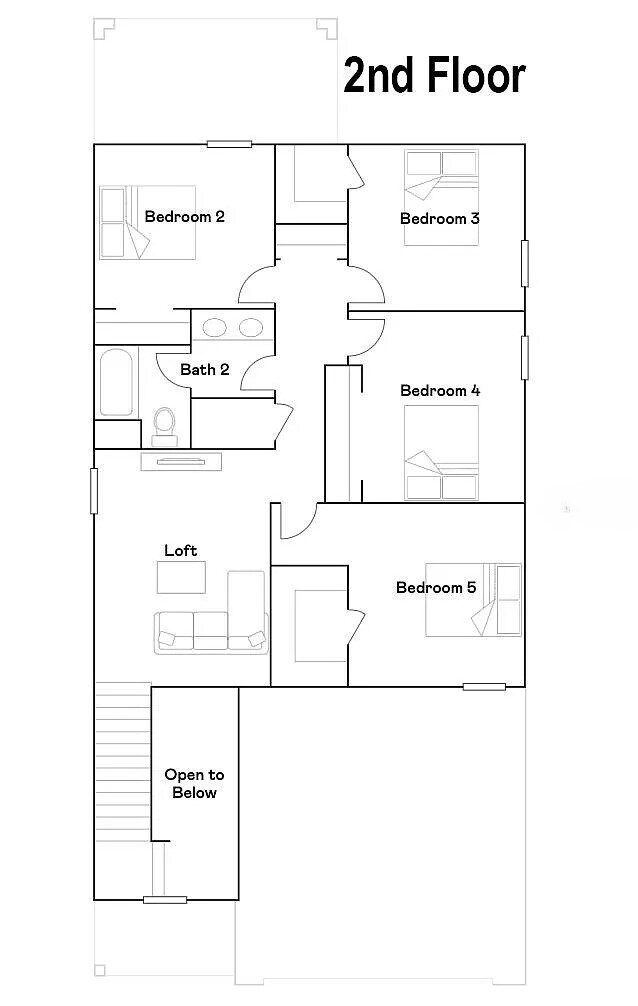
This house features an open floor plan, with a large kitchen equipped with quartz countertops, stainless steel appliances, a gas stove, pantry, and ample cabinet space. The living and dining areas are generously sized, with sliding glass doors leading to the covered lanai and backyard with fence. The primary bedroom with a huge walk-in closet and attached bathroom featuring dual sinks and a walk-in shower, is conveniently located on the first floor along with the laundry room. Upstairs, you'll find a spacious loft a bathroom, and four generously sized bedrooms.
Rent: $2,450
Security deposit required: $2,450
Pet deposit: $400 per pet
Application Fee per adult (non-refundable) : You can apply on this site.
Requires tenant earns 2.5 times the monthly rent; has no evictions, good credit score along with good rental history, and has not been convicted of any felonies.
Tenant needs to show a proof of income to pay the rent and utilities. You need to provide the two most recent pay stubs, copy of the driver's license.
First month rent and security deposit is due at signing.
No Smoking inside the property.
Access to Community Pool.
HOA fee and Lawn care is included in the rent.
Tenants poys utilities.
Map
- 35186 Ackley Trace
- 35168 Ackley Trace
- 35127 Brackett Bend
- 1726 Lanier Rd
- 35244 Big Hawk Dr
- 35310 Big Hawk Dr
- 35326 Big Hawk Dr
- Madeira III Plan at Ackley - Two Rivers Artisan Series
- Key West II Plan at Ackley - Two Rivers Artisan Series
- Key West I Plan at Ackley - Two Rivers Artisan Series
- Key Largo II Plan at Ackley - Two Rivers Artisan Series
- Key Largo I Plan at Ackley - Two Rivers Artisan Series
- Islamorada II Plan at Ackley - Two Rivers Artisan Series
- Islamorada I Plan at Ackley - Two Rivers Artisan Series
- Granada II Plan at Ackley - Two Rivers Artisan Series
- Granada I Plan at Ackley - Two Rivers Artisan Series
- Cedar Key II Plan at Ackley - Two Rivers Artisan Series
- Cedar Key I Plan at Ackley - Two Rivers Artisan Series
- Biscayne II Plan at Ackley - Two Rivers Artisan Series
- Biscayne I Plan at Ackley - Two Rivers Artisan Series
- 1726 Lanier Rd
- 35461 Ackley Trace
- 35311 Big Hawk Dr
- 35335 Big Hawk Dr
- 35436 Big Hawk Dr
- 35482 Big Hawk Dr
- 35980 Sunflower Hill Dr
- 3289 Fresno Place
- 34395 Sorrel Mint Dr
- 34328 Redwood Dawn Ln
- 3233 Fresno Place
- 2894 Peony Prairie Ln
- 2894 Peony Pr Ln
- 34109 Tributary Ct
- 2322 Alee Ln
- 34275 Sorrel Mint Dr
- 34253 Sorrel Mint Dr
- 2198 Hallier Cove
- 2855 Maiden Grass Isle
- 34142 Polacca Ln