6054 Trace Dr SW Port Orchard, WA 98367
McCormick Woods NeighborhoodEstimated payment $5,579/month
Highlights
- Under Construction
- Contemporary Architecture
- Loft
- Two Primary Bedrooms
- Territorial View
- Sport Court
About This Home
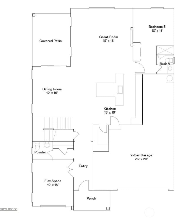
Welcome to the Roslyn plan at McCormick Trails! Backing up to green space, this new two-story home offers desirable features including a secluded flex space & inviting covered porch on the first level, where an open-concept layout blends the kitchen, living & dining areas near a convenient bedroom with an en-suite bathroom. On the second floor, a versatile loft provides a shared living area easily accessible from three additional bedrooms & a lavish owner’s suite at the back of the home, complete with a full bathroom, walk-in closet and retreat. With Lennar, Everything's Included at no extra cost! Buyer's broker must be registered during customers first interaction with Lennar Associate to be eligible for compensation.
Source: Northwest Multiple Listing Service (NWMLS)
MLS#: 2442381

Open House Schedule
-
Friday, October 10, 202511:00 am to 5:00 pm10/10/2025 11:00:00 AM +00:0010/10/2025 5:00:00 PM +00:00Start at the model home on 4124 SW Rustler St.Add to Calendar
-
Saturday, October 11, 202511:00 am to 5:00 pm10/11/2025 11:00:00 AM +00:0010/11/2025 5:00:00 PM +00:00Start at the model home on 4124 SW Rustler St.Add to Calendar
Home Details
Home Type
- Single Family
Est. Annual Taxes
- $7,685
Year Built
- Built in 2025 | Under Construction
Lot Details
- 7,134 Sq Ft Lot
- Open Space
- East Facing Home
- Property is Fully Fenced
- Level Lot
- Garden
HOA Fees
- $69 Monthly HOA Fees
Parking
- 2 Car Attached Garage
Home Design
- Contemporary Architecture
- Poured Concrete
- Composition Roof
- Cement Board or Planked
Interior Spaces
- 4,090 Sq Ft Home
- 2-Story Property
- Electric Fireplace
- Dining Room
- Loft
- Territorial Views
- Storm Windows
Kitchen
- Walk-In Pantry
- Stove
- Microwave
- Dishwasher
- Disposal
Flooring
- Carpet
- Laminate
Bedrooms and Bathrooms
- Double Master Bedroom
- Walk-In Closet
- Bathroom on Main Level
Outdoor Features
- Sport Court
- Patio
Schools
- Sunnyslope Elementary School
- Cedar Heights Jh Middle School
- So. Kitsap High School
Utilities
- Forced Air Heating and Cooling System
- High Efficiency Air Conditioning
- High Efficiency Heating System
- Heat Pump System
- High Speed Internet
- High Tech Cabling
Community Details
- Mccormick Woods HOA
- Secondary HOA Phone (360) 895-3800
- Built by Lennar
- Port Orchard Subdivision
- The community has rules related to covenants, conditions, and restrictions
- Electric Vehicle Charging Station
Listing and Financial Details
- Tax Lot 349
- Assessor Parcel Number 000349
Map
Home Values in the Area
Average Home Value in this Area
Property History
Date | Event | Price | List to Sale | Price per Sq Ft |
---|---|---|---|---|
10/08/2025 10/08/25 | For Sale | $914,950 | -- | $224 / Sq Ft |
Source: Northwest Multiple Listing Service (NWMLS)
MLS Number: 2442381

- 6051 Crestner Dr SW
- 6013 Trace Dr SW
- 6013 Trace Dr SW Unit 456
- 6014 Trace Dr SW
- 6080 Crestner Dr SW
- 6102 Crestner Dr SW
- 5894 Trace Dr SW
- 5763 Trace Dr SW
- 5733 Trace Dr SW
- 5846 SW 44th St
- 4520 Victory Place SW
- 4838 Victory Dr SW
- 6150 SW Rhododendron Dr
- 5703 Trace Dr SW
- 7420 Washington 3 Unit 31
- 4402 Lone Bear Ln SW
- 4310 Novak Dr SW
- 6240 SW Old Clifton Rd
- 4160 Dr SW Novak
- 5925 Addison Rd SW Unit 100
- 1471 SW Fielder Place
- 1617 W Admiralty Heights Ln
- 1725 W Sunn Fjord Ln Unit J101
- 1710 W Sunn Fjord Ln
- 487 Mansfield Ct SW
- 414 SW Hayworth Dr
- 4999 Sidney Rd SW
- 1800 Sidney Ave
- 232 Poplar St
- 4520 Bay Vista Blvd
- 5760 Kitsap Way
- 1481 SE Blueberry Rd
- 3300 Valentine Ln SE
- 2192 SE Sedgwick Rd
- 145 Bloomington Ave
- 900 Mitchell Ave
- 1621 Plisko Ln
- 2135 4th St
- 83 NE Ridge Point Blvd
- 105 Anoka Ave