TBD Silver Lake-Scotchtown Rd Middletown, NY 10940
Estimated payment $2,845/month
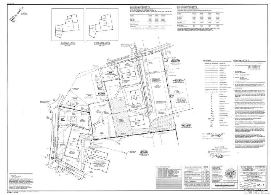
About This Lot
Attention Builders and Developers: Presenting a rare, fully-approved 3-lot subdivision on Silverlake Scotchtown Road in the desirable Town of Wallkill, ready for the construction of three new two-family homes. Each lot is designed to accomodate a 32x80 structure which is large enough for each unit to include 3 bedrooms, 2 baths and a 1 car garage. This is a shovel-ready project as all major hurdles have been cleared: the plans for the Patel Multi-Family Realty Subdivision have been granted Planning Board approval and the map is officially filed, eliminating months of risk and carrying costs. The infrastructure is in place and approved for connection to Municipal Water, Municipal Sewer, and Natural Gas (O&R). The location offers superior convenience, situated just off Route 211 with excellent proximity to major highways like I-84 and Route 17/I-86, and only minutes from the Metro North train, making the final units highly marketable. The approved zoning allows the buyer significant flexibility to provide their own architectural drawings to the Town, enabling them to tailor the unit sizes and finishes to the current market. A previous design concept centered around high-yield duplexes featuring spacious 3-bedroom, 2-bathroom units with a 1-car garage. This offering includes Lot 3 (+/- 0.432 acres), Lot 4 (+/- 0.867 acres), and Lot 5 (+/- 2.5 acres). For streamlined long-term management, a common/shared driveway and a common use and maintenance agreement are already prepared and in place. This is a premium opportunity for a developer looking to maximize their construction timeline and profitability with a de-risked site. Contact the listing agent today to receive all filed site plans and engineering reports (See Documents for the Filed Map)
Listing Agent
Keller Williams Hudson Valley Brokerage Phone: 845-610-6065 License #10301205773 Listed on: 10/30/2025
 
                        Co-Listing Agent
Keller Williams Hudson Valley Brokerage Phone: 845-610-6065 License #10301219733
Property Details
Property Type
- Land
Est. Annual Taxes
- $1,160
Lot Details
- 3.8 Acre Lot
- Partially Wooded Lot
Schools
- Presidential Park Elementary School
- Middletown Twin Towers Middle Sch
- Middletown High School
Utilities
- Underground Utilities
- Cable TV Available
Listing and Financial Details
- Legal Lot and Block 52 / 1
- Assessor Parcel Number 335200-050-000-0001-052.000-0000
Map
Home Values in the Area
Average Home Value in this Area
Property History
| Date | Event | Price | List to Sale | Price per Sq Ft | 
|---|---|---|---|---|
| 10/30/2025 10/30/25 | For Sale | $525,000 | -- | -- | 
Source: OneKey® MLS
MLS Number: 928228
 
					- 15 Clark St
- 24 3rd St
- 38 Sheffield Dr
- 24 Kent Ct
- 105 Sheffield Dr
- 1 Lake Ridge Dr
- 1 Polly Kay Dr
- 115 Vincent Dr
- 38 Cobblestone Ln
- 47 Carpenter Ave
- 11 Cobblestone Ln
- 80 Beattie Ave
- 30 Avoncroft Ln
- 7 Avoncroft Ln
- 23 Avoncroft Ln
- 143 N Beacon St
- 77 Prince St
- 167 Rockwell Ave
- 4 Red Barn Ln
- 37 Wisner Ave Unit 39
- 700 Stratford Ln
- 28 Kent Ct
- 300 Northwoods Rd
- 92 Sheffield Dr
- 5 Giada Ln Unit 8
- 5 Giada Ln Unit 7
- 5 Giada Ln Unit 5
- 5 Giada Ln Unit 4
- 5 Giada Ln Unit 3
- 5 Giada Ln Unit 2
- 6 Giada Ln Unit 8
- 6 Giada Ln Unit 6
- 6 Giada Ln Unit 5
- 6 Giada Ln Unit 4
- 6 Giada Ln Unit 3
- 6 Giada Ln Unit 2
- 6 Giada Ln Unit 1
- 92 Fitzgerald Dr
- 412 North St Unit 2
- 23 Albert St
 
             
                 
                 
                