$110,000

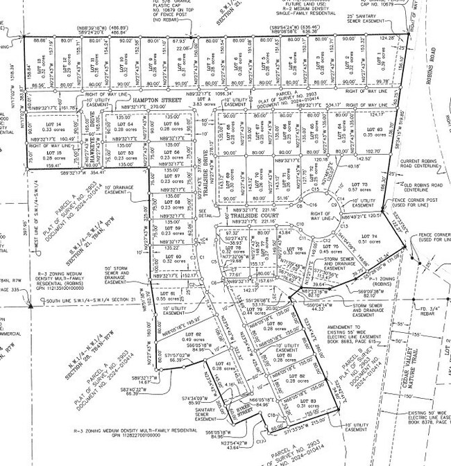
2965 Trailside Dr Robins, IA 52328

Estimated payment $702/month

Total Views 25,992
-- Bed
-- Bath
-- Sq Ft
-- Price per Sq Ft

About This Home

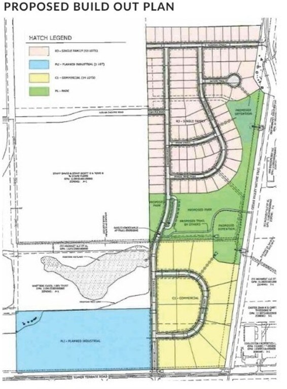
Introducing Robins Landing, the newest residential and planned walk ability lifestyle development in Robins, Iowa. Located along the Cedar Valley Nature Trail, with access from Tower Terrace Road and Robins Road. Plans for an approximate 16 acre Robins Landing Park is planned with the City Parks and Recreation department. The park and Cedar Valley Nature Trail will also have access to South Troy Park including the baseball and softball fields. This Planned Development will host retail that can utilize the trail and walking ability to housing. You may select your builder and timeline for construction. Standard and egress building sites, Cedar Rapids water, Robins sewer, USA Communications fiber and internet, Mid American gas, private trash, and within the development electric is REC or Alliant. Please confirm pending on the lot number. Harding, Hiawatha, Kennedy School District. 1,350 sq ft ranch minimum, 1,850 multi-level sq ft minimum. 0.3 Miles to Main Street in Robins, 2 Miles to County Home Rd, 2 Miles to I380. Immediate possession. $100 annual HOA fee, $100 start up fee.

Listing Agent

Heather Morris

SKOGMAN REALTY Listed on: 03/12/2025

SKOGMAN REALTY

Home Details

Home Type

  • Single Family

Lot Details

  • 23,958 Sq Ft Lot
  • Level Lot

HOA Fees

  • $8 Monthly HOA Fees

Schools

  • Hiawatha Elementary School
  • Harding Middle School
  • Kennedy High School

Listing and Financial Details

  • Assessor Parcel Number 11213-54009-00000

Home Details

Home Type

Single Family

Lot Details

0.55 Acres

HOA Fees

$8 per month

Listing Details

  • Association Fee Frequency: Annually
  • Property Type: Farm
  • Property Sub-Type: Residential
  • ResoLotFeatures: Level
  • Lot Size Acres: 0.55
  • Road Surface Type: Paved
  • Co List Office Phone: 319-366-6427
  • MLS Status: Active
  • Directions: Robins Rd to Hampton St
  • Property Sub Type Additional: Residential,Unimproved Land
  • Special Features: VirtualTour
  • Property Sub Type: Detached

Utilities

  • Utilities: Electricity Available, Natural Gas Available
  • Sewer: Public Sewer
  • Water Source: Public

Condo/Co-op/Association

  • Association Fee: 100.0
  • Association: Yes

Schools

  • Elementary School: Hiawatha
  • High School: Kennedy
  • Middle Or Junior School: Harding

Lot Info

  • Lot Dimensions: .55 Acre
  • ResoLotSizeUnits: Acres
  • Parcel Number: 11213-54009-00000
  • Zoning Description: Res

Tax Info

  • Tax Annual Amount: 24.0

Map

Create a Home Valuation Report for This Property
The Home Valuation Report is an in-depth analysis detailing your home's value as well as a comparison with similar homes in the area

Home Values in the Area

Source: Public Records

Average Home Value in this Area





Source: Public Records

Property History

Date Event Price List to Sale Price per Sq Ft
03/12/2025 03/12/25 For Sale $110,000 -- --
Source: Cedar Rapids Area Association of REALTORS®

Source: Cedar Rapids Area Association of REALTORS®

MLS Number: 2501654

Cedar Rapids Area Association of REALTORS®
Your Personal Tour Guide

Ask me questions while you tour the home.